皆様、こんにちは。
立春を過ぎましたが、寒気の影響で、まだまだ寒いですが…
もうすぐ、春ですね…
ということで、新生活がすぐスタートできる
今回は、春までにお住まい頂ける物件ご紹介します!
下記にあてはまる人は、要checK ★
□ 広いお部屋に住みたい
□ 住宅ローンを家賃並みに抑えたい
□ 駐車場2台必要
□ 収納が欲しい
□ ハザードが心配(土砂崩れや、津波、地震)
□ すぐに引越したい
↓
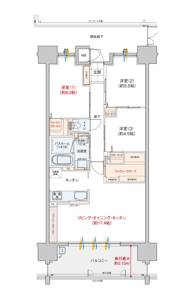
ヴェルディ・ザ・ガーデン大塚





♦ お支払い事例 ♦
14F 3338万円
もみじ銀行 自己資金 8万円 住宅ローン3330万円
変動金利0.75% 50年ローンの場合
月々 66,572円
(別途管理費:13,700円 修繕積立金:3,010円)
駐車場1台無料
詳しくは、ご来場の際にご案内します。
最終2邸となります。
お早めにどうぞ!
★☆★☆★☆★☆★☆★☆★☆★☆★☆★☆★☆★
他にも取り扱い物件あります。
詳細はクリック
↓
□ 即入居物件!
・ヴェルディ・タワーヴィレッジ宇品【ウエスト】( 最終分譲 )
□ NEW
・ヴェルディ楠木町 ( リバービュー! 駅徒歩圏 !住みやすい住環境 )
□ 駅徒歩圏内
・ ヴェルディ・ステーションテラス阿品 ( 駅徒歩1分! 宮島ビュー 平面駐車場0円 )
・ ヴェルディ・ステーションタワー天神川 (駅徒歩3分!マツダスタジアム・コストコ徒歩圏 平面駐車場0円 )
・ ヴェルディ・プロムナード[祇園] ( 駅徒歩4分 ! プロムナードと利便施設の融合の住環境 )
・ ヴェルディ祇園[フェリス] ( 角部屋有!平面駐車場0円~)
・ ヴェルディ・ザ・タワー広島Sta. ( 1LDK~ご準備してます! )
□ 広いお部屋に住みたい!
・ ヴェルディ庚午北コンフォート( 角部屋有!住みやすい住環境)
・ヴェルディ・ザ・タワー楽々園(角部屋有!圧倒的 オーシャンビュー)
・グラン・ヴェルディ牛田本町( 1フロア2邸の邸宅風マンション 残り僅か )
・ヴェルディ・ザ・タワー広島Sta. ( 約136㎡ プレミアム住戸ラスト1邸 )
皆様のご来場を心よりお待ちしております。
今回のブログは、迫口がお届けしました。
__________________________
ヴェルディマンションギャラリー観音
広島市西区南観音7丁目13ー22
0120-596-600
